Journal of South China University of Technology(Natural Science Edition) ›› 2026, Vol. 54 ›› Issue (2): 145-151.doi: 10.12141/j.issn.1000-565X.250091

• Architecture & Civil Engineering • Previous Articles     Next Articles

Investigation on Acoustic Environment of Experimental Teaching Rooms in Universities

PENG Jianxin1,2(), WU Weizhen1   

  1. 1.School of Physics and Optoelectronics,South China University of Technology,Guangzhou 510640,Guangdong,China
    2.Key Laboratory of Architectural Acoustic Environment of Anhui Higher Education Institutes,Hefei 230601,Anhui,China
  • Received:2025-04-01 Online:2026-02-25 Published:2025-06-05
  • Supported by:
    the National Natural Science Foundation of China(12574518);the Open Project of Key Laboratory of Architectural Acoustic Environment of Anhui Higher Education Institutes(AAE2023K01)

Abstract:

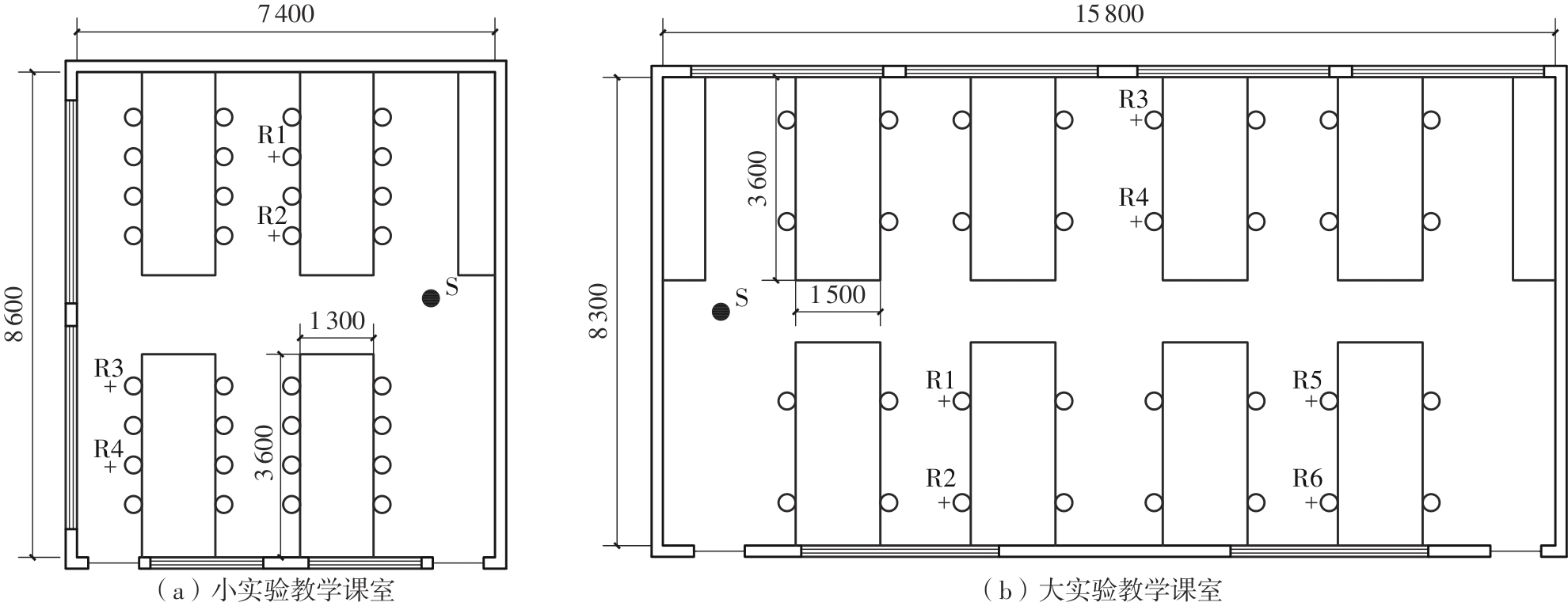
Speech intelligibility is an important acoustic index for the acoustic environment quality in speech-oriented halls. Excessive reverberation time (RT) and high background noise levels (BNL) can significantly degrade speech intelligibility in rooms. While numerous studies have investigated the acoustic environments of university classrooms, research focusing on experimental teaching spaces remains relatively scarce. This study conducted objective acoustic measurements in 14 physics experimental teaching rooms at a university in Guangzhou, collecting room acoustic parameters including BNL, early decay time (EDT), RT, early-to-late sound energy ratio (C50), and speech transmission index (STI) to analyze the acoustic characteristics of such rooms. The results show that the average BNL in unoccupied experimental teaching rooms was 37.1 dBA, which increased to 57.9 dBA during student experiments. The average values of EDT, RT, C50, and STI across the measured rooms were 1.23 s, 1.26 s, -1.89 dB, and 0.54, respectively. Comparative test shows that under the same spatial dimension conditions, experimental teaching rooms exhibit shorter RT than conventional classrooms, with relatively flatter frequency characteristics. This study also found that large lab tables with cavities can help reduce RT in experimental teaching rooms and improve their RT frequency response. Further analyzed results show that 13 out of the 14 measured experimental teaching rooms failed to meet the recommended values specified in current relevant standards. It is recommended to implement appropriate acoustic treatments in these rooms to reduce RT and BNL, enhance room acoustic conditions and speech intelligibility, ensure compliance with the acoustic requirements for university experiment teaching, and facilitate effective verbal communication between instructors and students.

Key words: experimental teaching room, acoustic environment, background noise level, reverberation time, speech intelligibility

CLC Number: